Suur saal

Mere Kultuurikeskuse suur saal
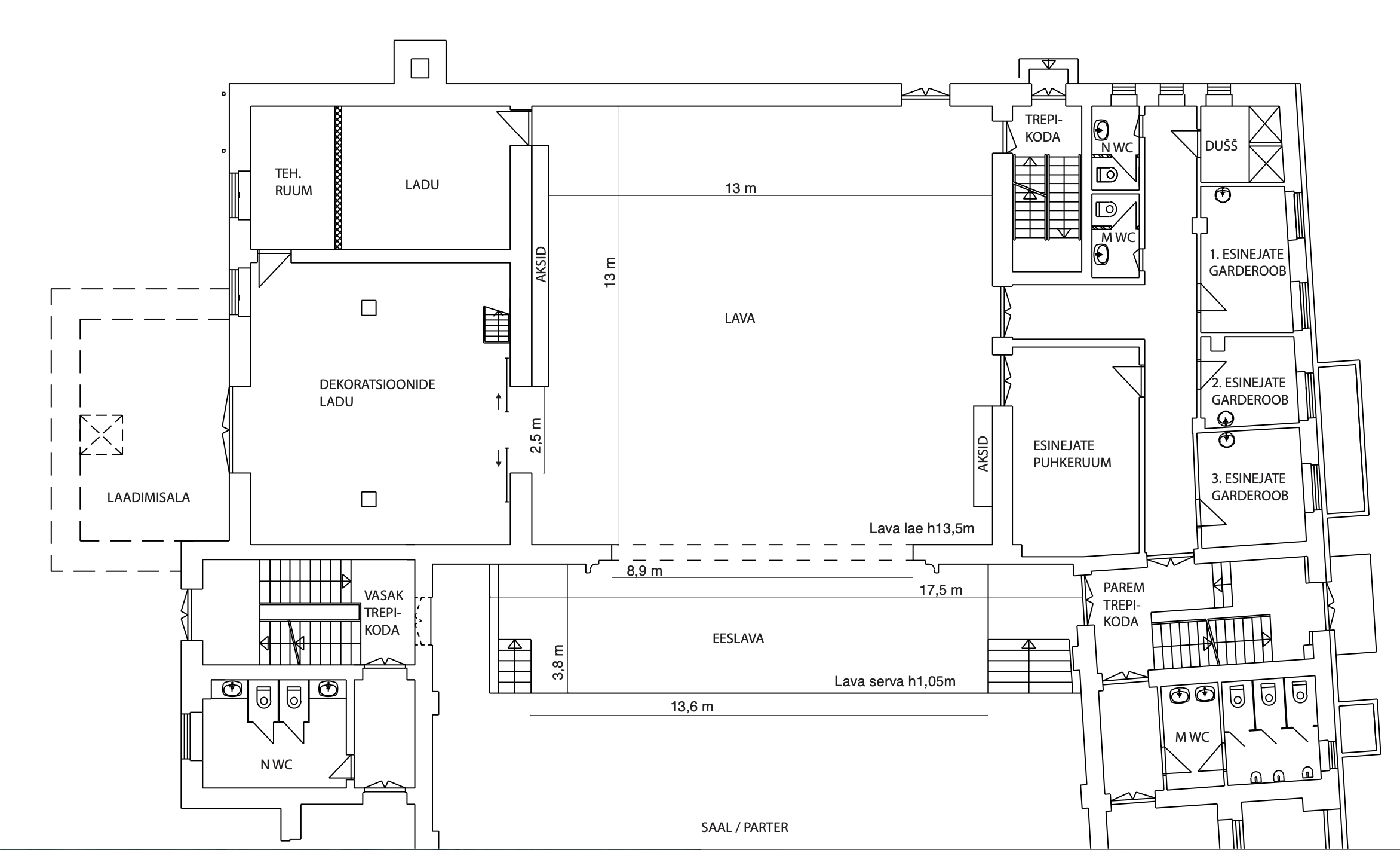
Suures saalis on 834 kohta (mugavad tugitoolid): parter — 550 kohta, 1. rõdu — 236 kohta, 2. rõdu — 48 kohta. Lava on varustatud kaasaegse tehnikaga.
Suures saalis on võimalik korraldada kontserte (sh klassika, džäss, segažanrid), teatrietendusi, konverentse, filmi- ja videoseansse, erinevaid festivale, kohtumisi ja galasid.
Ruumi rentimiseks võta ühendust: Tuuli Rand, +372 5341 3037, tuuli.rand@merekeskus.ee
Helitehnika
Mere Kultuurikeskuse suure saalis on statsionaarne helisüsteem:
- PA L-Acoustics KARA II
- L-Acoustics SB18 subwoofer
- L-Acoustics 5XT frontfill
- QSC KW153 sidefills
- Shure QLXD vastuvõtja + QLXD2 B58A
- Mikserpult: Allen & Heath Avantis (FOH asub statsionaarselt 1. rõdul)
Valgustehnika
Mere Kultuurikeskuse suure saali statsionaarne valguspark:
- Valguspult: ETC ION XE
- Projektor: NEC 12000 LM
- Kino ekraan: H 9/L 10
- 1 sofiit: 4 Clay Paky Arolla Profile + 2 Clay Paky Wash K-10 HCR
- 2 sofiit: 4 Clay Paky Arolla Profile + 4 Clay Paky Wash K-10 HCR
- 3 sofiit: 4 Clay Paky Wash K-10 HCR
- 2 külje stanged: 3 Clay Paky Axcor Spot 300 igalt poolt
- Laval on 4 lükid igal on 3 Dimmeri pistikupesa + 1-230v
- 1 rõdu: 6 PAR64 + 8 SELECONE PAR
- 2 rõdu: 6 ETC S4 ZOOM 15-30 + 4 Clay Paky Wash K-10 HCR + 2 CLAY PAKY MIdi-B + 2 Clay Paky Axcor Spot 300


Lava plaan



